B2 - Integriertes Projekt Architektur und Konstruktion: Hoch hinaus! (Kletterhalle)
2021
Lehrstuhl Baukonstruktion - Prof. Hartwig Schneider; Lehrstuhl für Gebäudetechnologie - Prof. Dr. Dirk Henning Braun; Lehrstuhl für Tragkonstruktionen - Prof. Dr. Martin Trautz
Arbeit in 6er-Gruppe

Konzepterläuterung

Grundriss

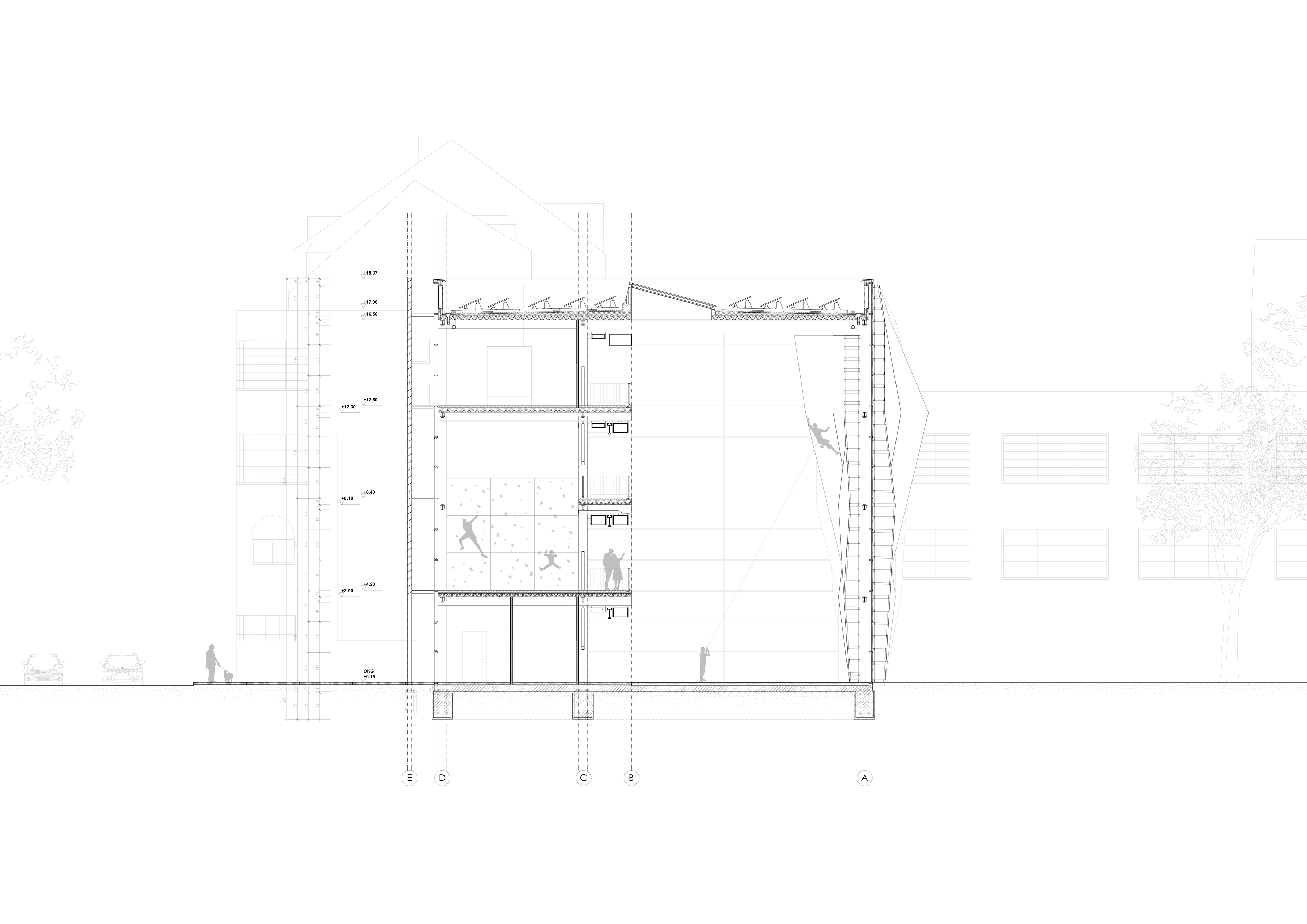
Schnitt

Ausschnitt Konstruktionseinheit

Rendering

Detail in Grundriss und Schnitt

Schnittperspektive
Aufgabe:
Mit einer neuen Kletterhalle in Aachen soll das Angebot für Klettersportler*innen erweitert werden. Als Standort ist ein Grundstück an der Jülicher Straße Ecke Lombardenstraße vorgesehen. Das Besondere am Integrierten Projekt ist die Zusammenarbeit der Lehrstühle Baukonstruktion, Tragwerklehre und Gebäudetechnologie zu gleichen Teilen. Die Aufgabe wird in allen drei Disziplinen gleichermaßen konkretisiert und in ihrer Tiefe behandelt.
Konzept:
Die neue Kletterhalle wird aus drei Hauptelementen gebildet: das Gerüst, das Rückgrat und die Kletterfläche. Das Gerüst als eigenständige Tragkonstruktion beinhaltet alle notwendigen Räume (Umkleide, Technik, Gastronomie, etc). Bei diesem modularen System können Wände als Trockenbaukonstruktionen und Decken aus Spannbetonplatten flexibel eingezogen werden. Das Rückgrat dient der Versorgung der Halle, indem dort Lüftungsrohre, Wasserleitungen, Heizungsrohe und Kabel für die Elektrik entlang laufen.